Refine Search
Location
Radius
Min Beds
Min Price
Min Price
Max Price
Max Price
Location
Radius
Min Beds
Min Price
Min Price
Max Price
Max Price
 

Woodcroft Avenue, London, NW7

LET

£5,000 PCM

5
2
3
Gallery (23)

Summary

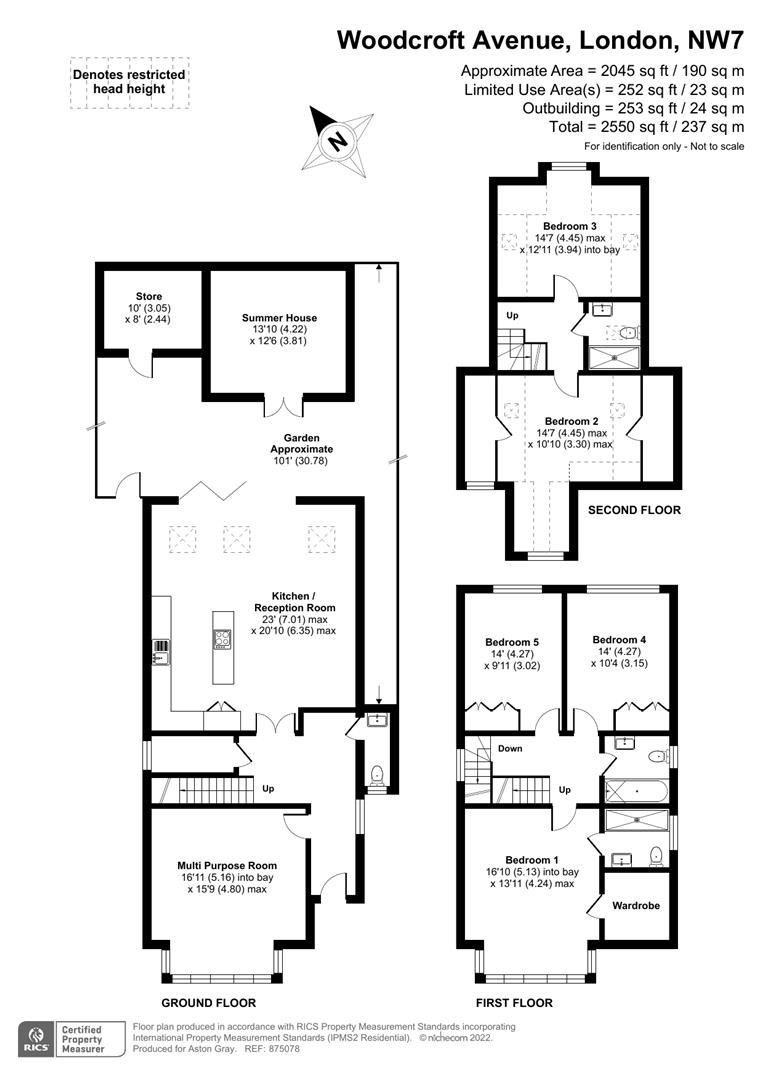
Arranged over three floors,, this immaculately presented, much improved detached family home, is situated in a highly sought after location and benefits from a drive way with off street parking for three to four cars.Once inside, the generously sized and welcoming hallway leads to the hub of the house - the elegant open plan kitchen/living room.This stunning example of open plan living has under floor heating and is further complemented as bi-folding doors provide access to the stylish garden. A mixture of patio and Lawn, this space is equally suited to entertaining or relaxing alike with the external lighting another positive feature.The 80ft garden is rounded off by a summerhouse/home office/gym which contains a kitchen area and shower room.Back inside, the ground floor is completed by a substantial reception room, utility room and cloakroom.The first floor is the home of the principle bedroom (complete with walk in wardrobe ) and including a modern en-suite shower room.There are another two bedrooms on this floor (both with built in cupboards) as well as a high quality family bathroom.The top floor provides another two bedrooms (both with eaves storage a plenty)which share a family bathroom.Woodcroft Avenue is close to the numerous shopping and transport facilities at Mill HillBroadway including Thameslink station. Popular local schools within both private andstate sectors are within a short distance as are local green spaces including WoodcroftPark. This property is available from the 6th October 2023.

Full Description

Viewing & Disclaimer

Viewing
Please contact us on 01628 200 385 if you wish to arrange a viewing appointment for this property, or require further information.

Disclaimer
Aston Gray - HP1 endeavour to maintain accurate depictions of properties in Virtual Tours, Floor Plans and descriptions, however, these are intended only as a guide and purchasers must satisfy themselves by personal inspection.

Key Features
  • Elegant open plan living
  • Stunning family home with excellent school catchments
  • Substantial garden with Summerhouse/Gym
  • Three bathrooms
  • Utility Room
  • Five double bedrooms all with built in storage
  • Close to Mill Hill Broadway Train Station - Thameslink Railway Station Road,
  • Close to local amenities
  • Ample off street parking
  • Available from the 6th October 2023
Free instant online valuation
IE8 Alert! Cookie Alert!

To get the best possible experience using our website we recommend you upgrade to a modern web browser. More info

Location
Radius
Min Beds
Min Price
Min Price
Max Price
Max Price
Location
Radius
Min Beds
Min Price
Min Price
Max Price
Max Price