Refine Search
Location
Radius
Min Beds
Min Price
Min Price
Max Price
Max Price
Location
Radius
Min Beds
Min Price
Min Price
Max Price
Max Price
 

Geldart Road, London, SE15

LET

£4,500 PCM

5
1
1
Gallery (15)

Summary

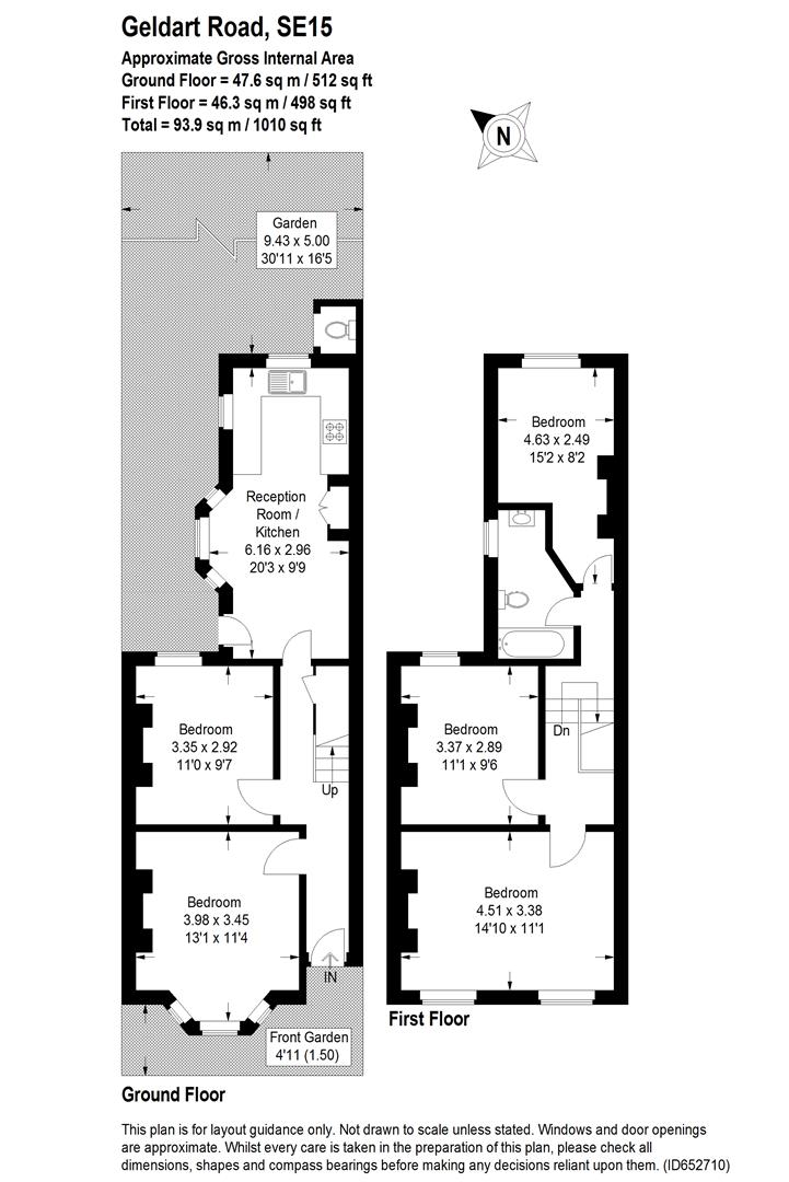
This five-bedroom Victorian house is full of character and charm and is situated a short walk from Peckham Rye and Queens Road Overground stations providing fantastic links to London Bridge in 8 minutes with its incredible access to central London. Additionally, excellent local bus links access Elephant and Castle Underground station within 15 minutes and onward to the West End. The resurgent and trendy Peckham with it's plethora of Independent Bars(the Bussey building and Franks bar are close by) and restaurants are a short stroll and provide something for everybody. Local shops sell food and wares from a diverse range of cultures and far flung corners of the world, the larger supermarkets of Sainsburys, Tesco's and Morrisons all close by for the larger shop. Each bedroom is furnished with bed, wardrobe and chest of drawers. and work desk providing an ideal study area and bedroom retreat. The kitchen/living area is ideal socialising space and the kitchen is fully integrated with cupboard space a plenty.The kitchen leads onto a private garden, a mixture of patio and lawn and is equally suited to relaxing or entertaining.This property is available from early September 2024

Full Description

Viewing & Disclaimer

Viewing
Please contact us on 01628 200 385 if you wish to arrange a viewing appointment for this property, or require further information.

Energy Performance Certificate
Click here to view the Energy Efficiency Rating and Environmental Impact Rating for this property.


Disclaimer
Aston Gray - HP1 endeavour to maintain accurate depictions of properties in Virtual Tours, Floor Plans and descriptions, however, these are intended only as a guide and purchasers must satisfy themselves by personal inspection.

Key Features
  • Five double bedrooms
  • Sociable living area
  • Wooden flooring
  • Excellent location
  • Private garden
  • Character features
  • Flexible furnishings
  • Available from early September 2024
Free instant online valuation
IE8 Alert! Cookie Alert!

To get the best possible experience using our website we recommend you upgrade to a modern web browser. More info

Location
Radius
Min Beds
Min Price
Min Price
Max Price
Max Price
Location
Radius
Min Beds
Min Price
Min Price
Max Price
Max Price