Refine Search
Location
Radius
Min Beds
Min Price
Min Price
Max Price
Max Price
Location
Radius
Min Beds
Min Price
Min Price
Max Price
Max Price
 

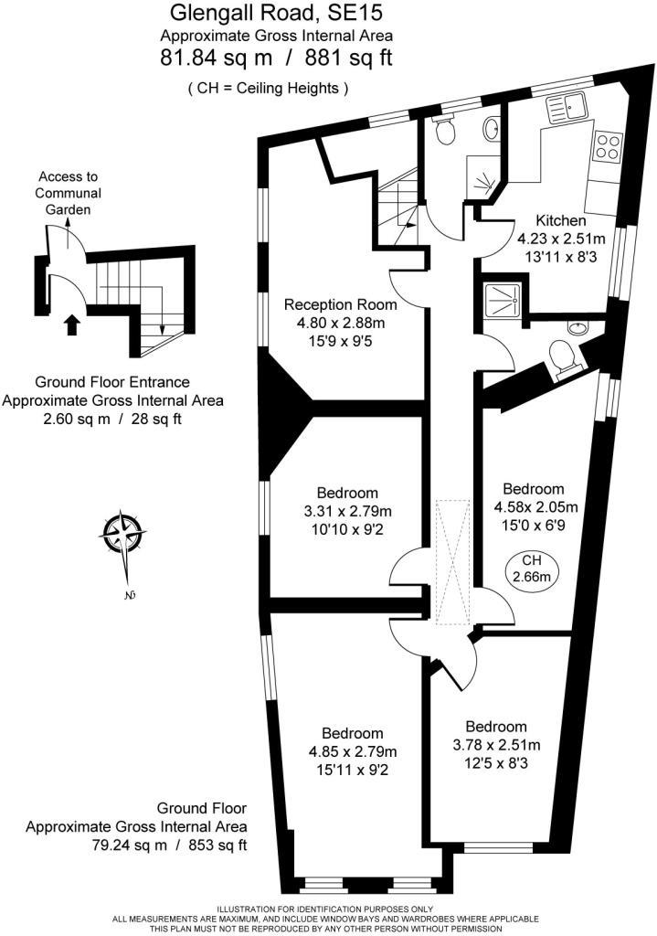
40a Glengall Road, London, SE15

Available

£3,000 PCM

5
2
Gallery (14)

Summary

This wonderful modern top floor five bedroom flat, with access to a private rear courtyard garden is perfectly located, less than a minute's walk to the nearest bus stop. The local buses can take you to London Bridge, Borough and into zone one. South Bermondsey is 0.9 miles away (Southern Rail) and Elephant and Castle (main line and Bakerloo and Northern lines) is 1.2 miles away. Burgess Park is a shortly stroll away, offering recreational space. Whilst Old Kent Road offers an array of bus links across the city and shops. Each bedroom comes furnished.. The kitchen boast plenty of storage and space for a seating area. This bright and modern flat is perfect for sharers.There are two shower rooms.The property is available immediately

Full Description

Viewing & Disclaimer

Viewing
Please contact us on 01628 200 385 if you wish to arrange a viewing appointment for this property, or require further information.

Energy Performance Certificate
Click here to view the Energy Efficiency Rating and Environmental Impact Rating for this property.


Disclaimer
Aston Gray - HP1 endeavour to maintain accurate depictions of properties in Virtual Tours, Floor Plans and descriptions, however, these are intended only as a guide and purchasers must satisfy themselves by personal inspection.

Key Features
  • 5 Double bedrooms - no reception room
  • Courtyard Garden
  • Flat Screen TV in each room
  • Washing Machine
  • Property comes furnished
  • Great transport links
  • Two bathrooms
  • Perfect for commuting
  • All double bedrooms
  • Available Immediately
Free instant online valuation
IE8 Alert! Cookie Alert!

To get the best possible experience using our website we recommend you upgrade to a modern web browser. More info

Location
Radius
Min Beds
Min Price
Min Price
Max Price
Max Price
Location
Radius
Min Beds
Min Price
Min Price
Max Price
Max Price